


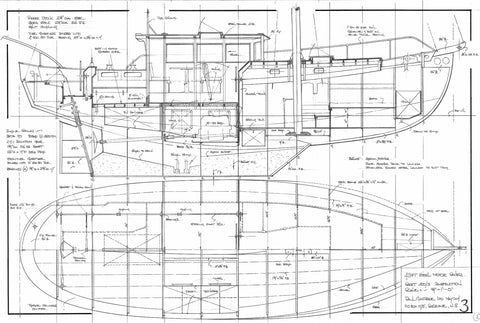
43ft Steel Motor Sailer Design #200
Here's a tough little cruiser ideal for coastal explorations in fair weather or foul. The hull lines are developed for sheet material and simplified construction. All ballast is internal. The accommodation plan shows five berths including two doubles, but this boat is really laid out for a cruising couple.
Construction: Steel with sheathed wood cabin and wheelhouse.
Length on deck: 43ft 0ins
Length waterline: 36ft 10ins
Beam: 13ft 10ins
Draft: 6ft 0ins
Displacement: 35,500lbs
Sailing rig: Sloop
Sail area: 968 sq ft
Fresh water: 800 litres
Fuel capacity: 1800 litres
Building time: 8000 hours
Skill level: High
$600.00
Copyright © 2026 Gartside Boats. Ecommerce Software by Shopify
