


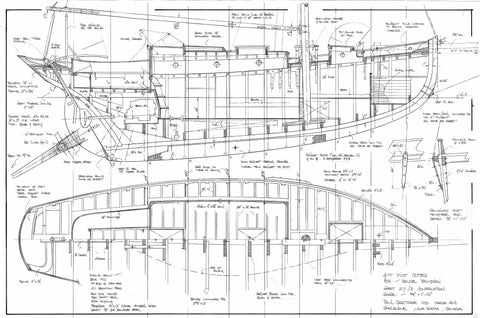
40ft Pilot Cutter, Design #217
A scaled down version of the traditional Bristol Channel pilot model, this 40ft cutter will be a comfortable, seaworthy cruising boat . With good tankage and plenty of room for a crew of four it's perfect for long range family voyaging. Construction is fully glued, with triple skin planking on laminated frames for longevity and easy maintenance .
Construction: Triple skin planking on laminated frames.Length on deck: 41 ft 3 in
Length Waterline:  35ft 2ins
 Beam: 12 ft 0 in
 Draft: 6 ft 3 in
 Displacement: 35,600 lbs
 Sail area: 1078 sq ft
 Building time: 10,000 hours
Skill level: high
Design #217: 7 Sheets
$800.00
    
    
    Copyright © 2025 Gartside Boats. Ecommerce Software by Shopify
  
