



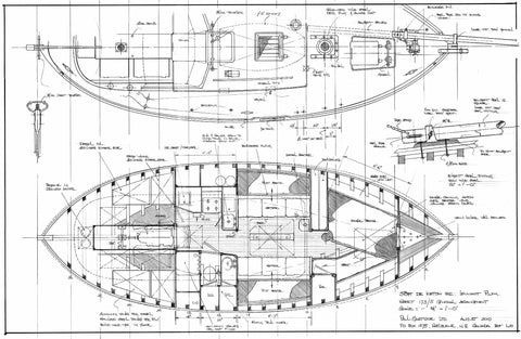
38 ft Double Ended Ketch, Design #173
One for the heavy wood folk, this massively built Colin Archer style double ender will take you anywhere you want to go in comfort and safety. While she likely won’t win any races she will make a wonderful cruising home with an ambience that is hard to beat for the traditionalist.
Construction: carvel on laminated framesLength: 38 ft 0 in
Beam: 13 ft 8 in
Draft: 6 ft 0 in
Displacement: 38000 lb
Sail area: 909 sq ft
Building time: 9000 hours
Skill level: high
Design #173: 7 Sheets
$800.00
Copyright © 2026 Gartside Boats. Ecommerce Software by Shopify
