


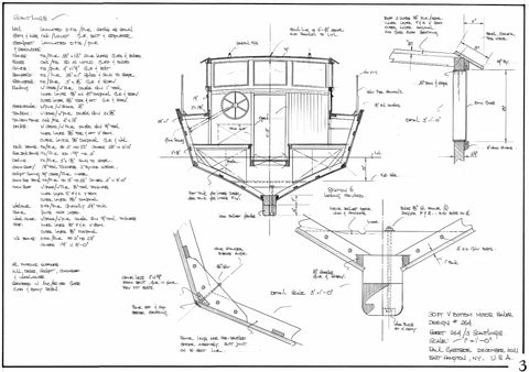
30ft Motor Sailer Design #264
Here is a simple, practical small motor sailer well suited to amateur construction. The V bottom model uses sawn frames and stringers as a framework to support double skin planking. One diagonal and one fore and aft layer, fully glued and sheathed with glass cloth and epoxy resin. Double planking and a laminated backbone avoid the need for long lengths of clear timber and allow the use of second growth, locally available material. The boat is laid out for two with inside and outside steering and will be a very comfortable coastal cruising boat.
Construction: double skin planking on sawn frames
Length on deck: 30ft 0 in
Length waterline: 27 ft 4 in
Beam: 11ft 9in
Draft: 4 ft 5 in
Displacement: 17,750 lbs
Sailing rig: Gaff sloop
Sail area: 465 sq. ft
Building time: 5000 hours
Skill level: Intermediate
