


25ft Tancook Whaler Design #227
This small schooner is modeled after the famous Tancook Whalers developed in the late 19th Century in the waters of Mahone Bay, Nova Scotia. Shallow draft, a small forward cuddy and the option of an inboard engine make this an ideal family daysailer/weekender.
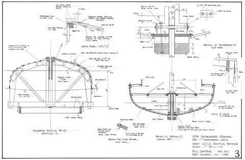
Construction is thoroughly traditional clinker on bent frames with a wooden centreboard and lead ballast shoe.
Construction: Clinker on bent frames
Length on deck: 26ft 2 ins
Length Waterline: 20ft 2ins
Beam: 8 ft 2 ins
Draft, CB: up 2 ft 0 ins
Draft, CB: down 5 ft 1 ins
Displacement: 4750 lbs
Ballast: 1200 lbs
Sail Area 292 sq ft
Sailing rig: Gaff Schooner
Building time: 4000 hours
Skill level: High
Design #227: 5 Sheets
$275.00
Copyright © 2025 Gartside Boats. Ecommerce Software by Shopify