


21ft Electric Launch, Design #241
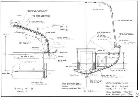
With rising demand for boats suitable for electric power comes the plans for this pretty 21ft launch. Styling is vintage steamboat, construction double skin fore and aft on bent frames, fully glued. Nicely done this will be a lovely vessel for an afternoon run on the lake - or simply to have parked in the driveway. The drawings show the installation of an EP 12 electric motor and four 165AH batteries. Alternative power plants would be a small steam engine and boiler or an antique gasoline engine.
Double planking on steam bent frames, fully glued.
Length: Overall 21 ft 6n
Length Waterline 16ft 5ins
Beam 5ft 6ins
Draft 1ft 3ins
Displacement 1700lbs approx.
Building time 1600 hours
Skill Level Intermediate
Design #241 5 Sheets
