


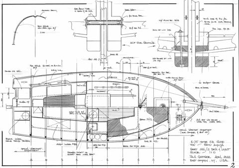
6.75 Metre CB Sloop, Design #266
A larger version of plan # 262, this 22ft (6.75 metre) centreboarder is perhaps the ideal weekender. It can be kept on a drying morning and used to explore shallow bodies of water,but is large enough to undertake coastal cruises. It falls within trailerable limits for moving around by road, and can be taken home for winter storage. The construction method show on the plan is double fore and aft planking over laminated frames using locally available pine throughout. Any of the common glued methods will work too including strip planking or plywood.
Beam: 2.50 metres (8ft 3ins)
Draft, CB down: 1.70 metres ( 5ft 7ins)
Displacement: 1750 kg (3850 lbs )
Sail area: 27.64 sq metres (297 sq ft)
Building time: 3000 hours
Skill level: Intermediate
Design #266 6 Sheets
