



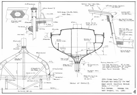
45ft Cutter, Design #236
Here's a powerful and comfortable cruising home an ideal boat for either family voyaging or for a couple with room for guest crew. The hull is of long keel form for maximum structural strength and double ended for intrinsic good balance. The aft cabin provides two berths separate from the main cabin while providing security to the central cockpit. The full width hard dodger over the forward end of the cockpit provides maximum shelter for the crew on watch. All round a smart and capable boat for world voyaging.
Construction; Triple skin cold molded hull and deck.
Length on deck: 45ft 0insLength waterline: 37ft 5ins
Beam: 13ft 0ins
Draft: 6ft 0ins
Displacement: 31,200 lbs
Sail area: 835 sq ft (100% fore triangle)
Building time: 10,000 hours
Skill level: High
Design #236: 6 Sheets
