


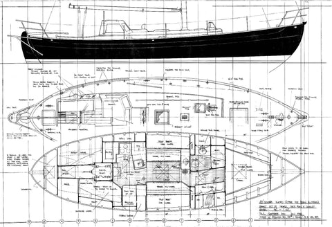
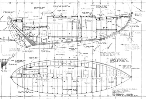
40 ft Double-Ended Cutter, Design #85
In the larger sizes where design costs are a much smaller part of overall budget, we find the purchase of a stock plan seldom makes economic sense. It will usually be found that there are greater savings to be made by tailoring the design precisely to the requirements of construction and usage. Nevertheless we have a number of designs on file that are ready to go or can be used as starting points in developing new plans.
A good example of our designs for larger cruising sailboats is this Colin Archer style double ender. This is a boat capable of taking you virtually anywhere in comfort and safety. As building projects go it is fairly straightforward with few difficult features. The building time indicates a serious investment of time and resources, so plan carefully before taking the plunge
Construction: Cold molded
Length: 40 ft 0 in
Length waterline: 35 ft 0 in
Beam: 11 ft 6 in
Draft: 6 ft 0 in
Ballast: 11,480
Displacement: 30,000 lbs
Sailing rig: Cutter
Sail area: 738 sq. ft
Fresh water: 720 liters
Fuel capacity: 495 liters
Building time: 9000 hours
Skill level: Intermediate
Design #85: 10 Sheets
