


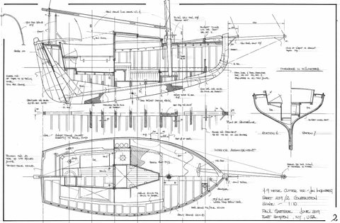
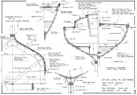
4.9 Metre (16ft) Cutter PUDEL, Design #239
This miniature cutter is a revised version of the Oysterman 16 a stock fibre glass boat designed back in 1978 - this time built plank on frame in the traditional manner. It is a small, simple boat intended for weekend and day sailing along shore. The cockpit is sealed but is not self draining, the cabin contains a pair of berths and enough room for modest cruising supplies. Perhaps the ideal boat for the solitary traditionalist.
Construction: carvel bent framesLength on deck: 4.9 metres 16ft 1in
Length waterline: 4.59 metres 15ft 0ins
Beam: 2.10 metres 6ft 10ins
Draft: 10.97 metres 3 ft 2 in
Displacement: 1468 kg 3230 lbs
Sail area 21.57 sq metres 266 sq ft
Building time: 2000 hours
Skill level: high
Design #239: 5 sheets
