


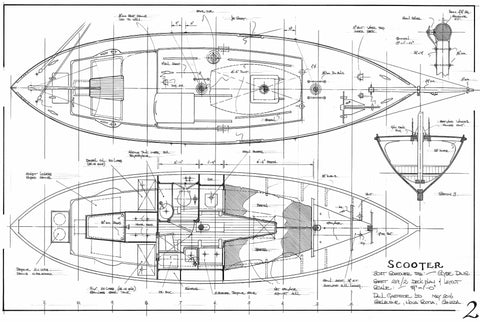
30FT Schooner, Design #219
Here's one for the romantics. This little schooner is just 30ft on deck but is no cartoon boat. With a well balanced hull and good ballast ratio, this is a capable small cruising boat. Headroom is limited by the shallow hull but the interior has comfortable living space for two with plenty of room for gear and supplies. Construction shown in the plans is fully glued triple skin laid up over temporary molds stiffened with laminated floors and joinery.
Construction: Triple skin, cold molded
Length: 30 ft 0 in
Length waterline: 24 ft 7in
Beam: 8 ft 2 in
Draft: 4 ft 3 in
Ballast: 2800 lbs
Displacement: 8,600 lbs
Sailing rig: Schooner
Sail area: 410 sq ft
Building time: 5000 hours
Skill level: High
Design #219: 6 Sheets
$350.00
Copyright © 2026 Gartside Boats. Ecommerce Software by Shopify
