


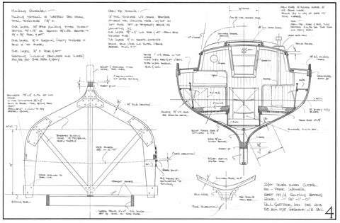
24ft Double Ended Cutter HANNAH II, Design #199
Hannah II was conceived as a larger version of the 18ft cutter Heathen, Design #181. This is a powerful, full bodied boat with the volume required for extended cruising. While there is less than standing headroom in the main cabin, ample beam provides the room to stretch out and the capacity to carry stores and gear. Hull construction is fully glued, a frameless, triple skin laminate with lead ballast and hollow spars. A manageable building project for the singlehander and perhaps the ideal size for a cruising couple.
Construction: Strip planking/ cold molded
Length: 24ft 0 ins
Length waterline: 21ft 6ins
Beam: 9ft 3ins
Draft, 4ft 6 in
Ballast: 3100 lbs
Displacement: 10,000 lbs
Sailing rig: Gaff cutter
Sail area: 427 sq. ft (lowers)
Building time: 5000 hours
Skill level: Intermediate
Design #199: 6 Sheets
