


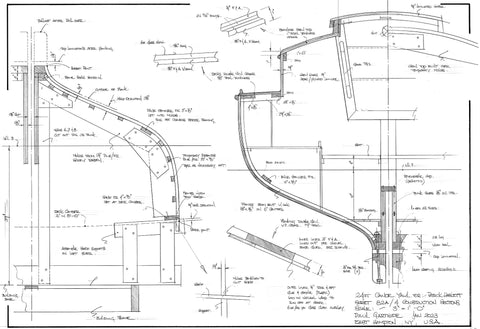
24ft Canoe Yawl Design #82A
The latest version of a plan from some twenty years ago for a boat of the canoe yawl type has more beam than the original and better all-round performance. This is a boat for the purist with no inboard engine, a pair of sweeps or an electric outboard over the side provide auxiliary power. Accommodation is limited but adequate for weekend sailing for a couple.
Construction is double fore and aft planking over steam bent frames. The weighted wooden centreboard drops through a slot in the lead ballast casting. Altogether this is an intricate piece of work and one that will be great fun for the experienced builder or anyone looking for an absorbing, challenging project.
Construction: Double planked cedar over bent frames
Length: 24 ft 9 in
Length Waterline: 19 ft 6 in
Beam: 7 ft 0 in
Draft: 2 ft 11 in; CB down: 5 ft 4 in
Displacement: 4880 lbs
Sailing rig: Gaff sloop
Sail area: 302 sq. ft
Building time: 3000 hours
Skill level: High
Design #82A: 7 Sheets
