

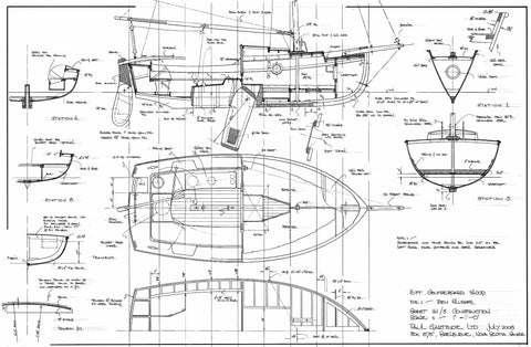
16 ft Centreboard Sloop, Design #161
This one is for the minimalists, or at least for small boys of any age hungry for that far horizon. It is a tiny cruising sailboat, but an eminently practical one—simple to built and economical in outlay.
Construction is dead simple: strip planking with glass sheathing inside and out. There are watertight compartments to keep her afloat in the event of swamping. The accommodation is cozy but ample for two on a weekend or for the single hander on longer trips.
Construction: strip planking with glass sheathing inside and out
Length: 16 ft 0 in
Beam: 7 ft 3 in
Draft, CB down: 4 ft 0 in
Ballast: 450 lbs
Displacement: 1800 lbs
Sail area: 174 sq. ft
Building time: 1200 hours
Skill level: intermediate
Design #161: 5 Sheet
$250.00
Copyright © 2026 Gartside Boats. Ecommerce Software by Shopify
