

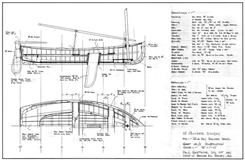
12 ft Clinker Dinghy, Design #130
This is a new design that I would expect to have wide appeal. It is similar in model and construction detail to #127, but two extra feet make it a lot more boat. A dagger board and standing lugsail add to the versatility and enjoyment. Swallows and Amazons fans will know what it is all about. The plans are very fully detailed and drawn 1½ in = 1 ft.
Construction: lapstrake on bent frames
Length: 12 ft 0 in
Beam: 4 ft 10 in
Depth amidships: 1 ft 5 in
Weight: 180 lbs
Sail area: 68 sq. ft.
Building time: 400 hours
Skill level: high
Design #130: 6 Sheet
$135.00
Copyright © 2026 Gartside Boats. Ecommerce Software by Shopify
