

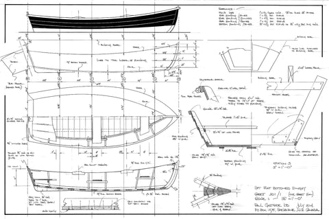
11 ft and 12 ft Flat-bottomed dinghies, Designs #201 and #202
Here are the plans for two simple flat-bottomed rowboats of traditional construction. #201 has a cross planked bottom and is the smaller of the two. #202 is a slightly more sophisticated model and has a fore and aft planked bottom. Either one would be ideal for builders wishing to learn traditional technique. The tow plans are offered as a single product.
Construction:
#201 Clinker sides, cross planked bottom
#202 Clinker sides, fore and aft planked bottom
#201
Length: 11 ft 0 in
Beam: 4 ft 8 in
Depth Amidships 1 ft 4 in
Weight: 75 lbs approx.
Building time: 120 hours
Skill level: Basic
Design #201 One sheet
#202
Length: 12 ft 0 in
Beam: 4 ft 8in
Depth amidships: 1 ft 3 in
Weight: 85 lbs approx.
Building time: 180 hours
Skill level: Intermediate
Design#202 Two sheets
