


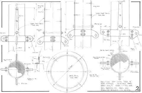
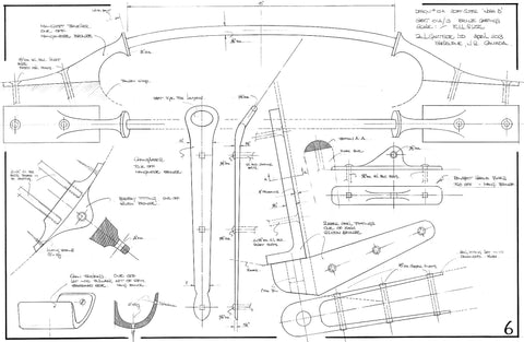
Ironwork, Design #101
These six sheets detail the complete set of metal fittings made for the 20ft gaff cutter 'Nora B' built to design #101 by our shop in 2012. The first five sheets show fittings of galvanised steel including mast bands, the hinged bowsprit fittings stem head fitting etc. Sheet six shows the bronze castings and included rudder hangings, chainplates and sheet traveller.
While the variety and size of fittings is different for every boat, these will prove a valuable resource for anyone contemplating the construction of a traditional rig.
The drawings are included with the plan set for design #101 or are available separately for C$25.00
$25.00
Copyright © 2026 Gartside Boats. Ecommerce Software by Shopify
