


5.35 Metre Sloop Design #286
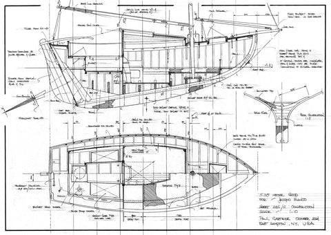
This little ship is a reworking of William Atkin’s Perigee, originally drawn sometime in the 1920s as a minimalist single hander. Overall size of the project makes it a good choice for the home builder in need of real boat building. The shop space required is small, none of the stages of construction are arduous and the material bill modest. This is yacht building in miniature. The result will be a capable coastal cruiser well suited to those who enjoy engineless wanderings.
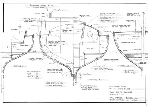
Construction: carvel bent frames
Length on deck: 5.35 metres 17ft 6in
Length waterline: 4.73 metres 15ft 6ins
Beam: 2.00 metres 6ft 6ins
Draft: 1.05 metres 3 ft 6 in
Displacement: 1700 kg 3740 lbs
Sail area 16.17 sq metres 174 sq ft
Building time: 2000 hours
Skill level: high
Design #286: 5 sheets
