

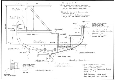
7.50 Metre Diesel Launch Design #280
Here’s a large handsome launch laid out for relaxed cruises in sheltered water. The commission came from tropical waters hence the open layout and sun awning. Diesel power in the range 15-25Hp will be plenty for economical running at a speed of 5knots. Construction drawings show strip and glass construction over laminated frames for simplicity and low maintenance. The keel carries an outside lead casting of 200KG to set the boat down and give a steady feel. Inside ballast may be used as an alternative. This is a hull that would lend itself to other arrangements – with an enclosed wheelhouse it would make a delightful small cruiser.
The drawings are in metric units.
Construction: Strip planking with fibreglass sheathing.
Length: 7.50 metres 24 ft 7ins
Length Waterline 6.56 metres 21ft 6ins
Beam 2.50 metres 8ft 3ins
Draft: 0.60 metres 2 ft 0ins
Displacement: 2000 kg 4400 lbs
Power 12-18 kw 15-25 hp
Building time: 1800 hours
Skill level: Intermediate
Design #280 Four Sheets
