


19ft Catboat Design #275
Here’s a boat with family written all over it. Crew weight will be needed to get the best of this big cat which makes it the ideal boat for family outings. There is lots of room here for picnics and fishing expeditions. And guaranteed thrills when the breeze picks up.
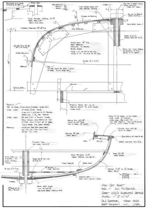
Plans show a glued construction but traditional plank on frame would be the most pleasant way to build and give the true authentic feel.
Construction: Double fore and aft planking on bent frames or single skin carvel on bent frames.
Length on deck: 19ft 0ins
Beam: 9ft 8ins
Draft, CB: down 4ft 10ins
Sail area: 204 sq ft
Building time: 800 hours
Skill level: Intermediate
Design #275 Five Sheets
$75.00
Copyright © 2026 Gartside Boats. Ecommerce Software by Shopify
