

16ft Shoal Draft Electric Launch Design #273
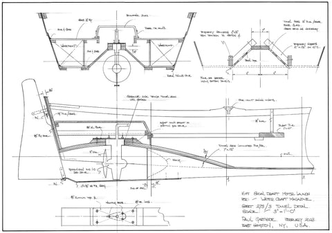
With continued interest in small electric powered boats the editor of Water Craft Magazine requested a reworking of William Atkins 16ft launch ‘Twinkle’. In this version the flat bottom and tunnel stern are retained while more spring has been added to the sheerline and the topside flare increased. This will be a very simple practical boat well suited to the home builder with limited equipment and experience. The power unit shown on the plan is the epropulsion 1.0 EVO but many other small pod drive units will work.
Construction: Stitch and glue plywoodLength: 16ft 0ins
Beam: 6ft 6ins
Hull depth amidships 1ft 11ins
Power: Electric Pod Drive
Building time: 500 hours
Skill level: Basic
Design #2735 Three Sheets