


6 Metre Inboard Launch Design #228
For picnicking or day fishing trips, this small inboard launch will be the perfect vehicle. Plans show a small diesel installation, an antique petrol engine would be another option, or perhaps this is the opportunity to explore electric power.
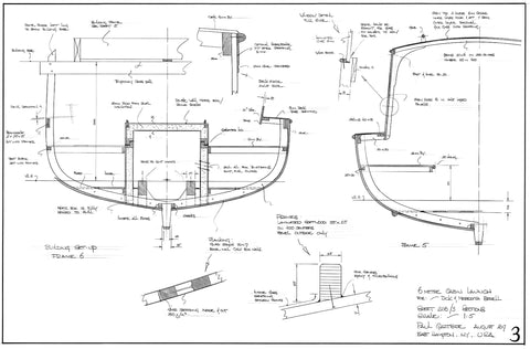
Construction shown is strip planking over laminated frames with a skin of glass inside and out. Clinker on bent frames would be the traditional approach and a lot more fun.
Construction: Strip planking on laminated frames.
Length Overall 6.05 metres
Length Waterline 5.78 metres
Beam 2.10 metres
Draft 0.47 metres
Displacement: 1100 kg
Power: 10-15 bhp
Building time: 1200 hours
Skill level: Intermediate
