


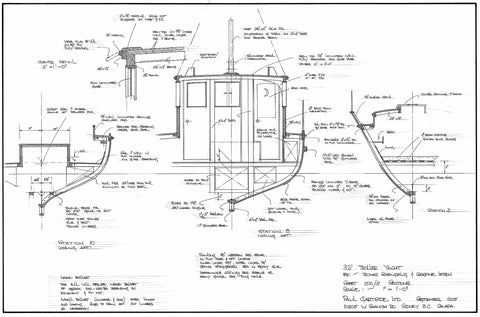
32 ft Motor Cruiser "Promised Land", Design #152
I drew this powerful little double ender for my good friend Thomas Schienpflug, first rate boatbuilder and lover of heavy wood and traditional boats. She is modeled after the double ended salmon trollers once a familiar sight in the Pacific NW, but with a little more beam for better cruising accommodation. The plans show double skin fore and aft planking over laminated frames. Single skin carvel and steam bent frames would be equally appropriate where materials are available. Either way this one is a challenging piece of work, but the result will be a very comfortable and economical long range motor boat.
Construction: carvel or double fore and aft planking on laminated frames
Length: 32 ft 6 in
Power: 50 bhp
Beam: 10 ft 9 in
Depth amidships: 3 ft 3 in
Displacement: 14400 lbs
Building time: 5500 hours
Skill level: high
Speed: 7 knots
Design #152: 5 Sheets
