


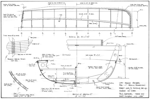
17ft Beach Cruiser Design #226
Here's a fast light daysailer designed especially for camp cruising with one or two crew. It features watertight flotation compartments fore and aft and sleeping flats either side of the CB trunk and dry storage under the foredeck. There is also a well for a small outboard auxiliary when the wind dies. Construction is simple strip and glass and the rig is freestanding for quick set up and take down.
Construction: Strip planked with glass and epoxy sheathing.
Length on deck: 17ft 0ins
Beam: 6ft 4ins
Depth Amidships 1ft 9ins
Draft, CB: down 4ft 0ins
Sail area: 149 sq ft
Building time: 1000 hours
Skill level: Intermediate
Design #226 Six Sheets
$200.00
Copyright © 2025 Gartside Boats. Ecommerce Software by Shopify
