


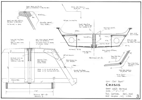
13FT Catboat 'Crisis' Design #246
Small catboats have enduring appeal for traditionalists. This simple plywood cat goes back many years but the drawings have been recently updated and the level of detail improved with the home builder in mind. A relatively simple project using readily available materials, a good one for the first time builder.
Construction: Plywood stitch and glue
Length: 13ft 0ins
Beam: 5ft 10ins
Draft, CB down: 3ft 0ins
Sail area: 100 sq. ft
Building time: 300 hours
Skill level: Basic
Design #246 Four sheets
Price:
$170.00
Copyright © 2026
Gartside Boats. Ecommerce Software by Shopify
