


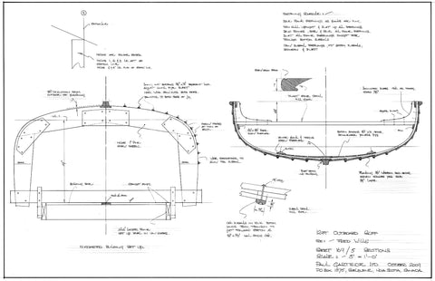
12 ft Outboard Skiff, Design #169
An elegant and very practical small outboard runabout of traditional construction. Suitable for outboard engines in the 5-15HP range. Built carefully and finished well this one can be a real show piece of craftsmanship.
Construction: lapstrake on bent framesLength: 12 ft 0 in
Beam: 5 ft 4 in
Weight: 180 lbs
Depth amidships: 1 ft 8 in
Building time: 400 hours
Skill level: high
Design #169: 5 Sheets
Price:
$195.00
Copyright © 2026
Gartside Boats. Ecommerce Software by Shopify
