

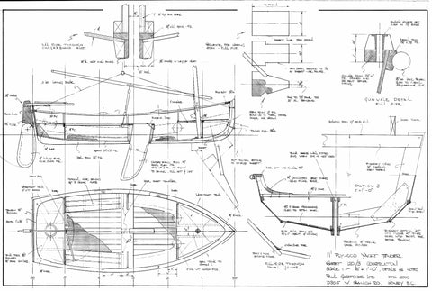
11 ft Plywood yacht Tender Design #120
This one was designed to sit in the deck chocks of a converted fishboat. It is a pretty little boat and a very simple one to build. Its main function is to provide shore transportation under oars or outboard motor. It is also fitted with a daggerboard and a standing lugsail for pottering under sail. All spars will stow inside the boat. Large buoyancy tanks fore and aft add positive floatation in the event of swamping.
Construction is very simple and consists of three panels of plywood bent over temporary molds with seams lapped and glued. Plan scale is 1½ in. = 1 ft.
Length: 11 ft 0 in
Beam: 4 ft 6 in
Depth amidships 1 ft 6 ins
Weight: 150 lbs approx
Sailing rig: Standing Lug
Sail area: 57sq. ft
Building time: 200 hours
Skill level: basic
Design #120: 3 Sheets
